锻钢截止阀是一种常用的截止阀,主要用于连接或截断管道中的介质,一般不用于调节流量。截止阀适用的压力和温度范围较大,该阀门是适用于小口径管道,密封面不易磨损、划伤,密封性能好,启闭阀瓣行程小,启闭时间短,阀门高度小。
设计制造标准
设计和制造按:API 602,ASME B16.34
连接尺寸按:ASME B16.25
检验和测试按:API 598
性能规范
公称压力:150 ~ 800LB
强度实验:1.5xPN
密封实验:1.1xPN
气密封测试:0.6Mpa
阀门主体材料:A105(C)、F304(P)、F304L(PL)、F316(R) , F316L(RL)
适用介质:水、蒸汽、油品、硝酸类、醋酸类
适用温度:-29 ℃~425℃
产品结构

主要零件材料
零件名称 | 材料 | |||
阀体 | A105 | A182 F22 | A182 F304 | A182 F316 |
阀瓣 | A276 420 | A276 304 | A276 304 | A182 316 |
阀杆 | A182 F6A | A182 F304 | A182 F304 | A182 F316 |
阀盖 | A105 | A182 F22 | A182 F304 | A182 F316 |
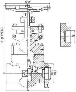
主要尺寸和重量
J6/1 1H/Y | CLASS150-800 | ||||||||
Size | d | S | D | G | T | L | H | W | |
DN | Inch | ||||||||
1/2 | 15 | 10.5 | 22.5 | 36 | 1/2″ | 10 | 79 | 172 | 100 |
3/4 | 20 | 13 | 28.5 | 41 | 3/4″ | 11 | 92 | 174 | 100 |
1 | 25 | 17.5 | 34.5 | 50 | 1″ | 12 | 111 | 206 | 125 |
1 1/4 | 32 | 23 | 43 | 58 | 1-1/4″ | 14 | 120 | 232 | 160 |
1 1/2 | 40 | 28 | 49 | 66 | 1-1/2″ | 15 | 152 | 264 | 160 |
2 | 50 | 35 | 61.1 | 78 | 2″ | 16 | 172 | 296 | 180 |
如果您对我们的产品感兴趣,请立即与我们联系。